Contactez-nous par mail
du lundi au vendredi
Contactez-nous par telephone
05 82 95 12 10
Contactez-nous via un formulaire
Contactez-nous
Programme 7829 à Bonnefoy : photo 0
Programme 7829 à Bonnefoy : photo 1
Programme 7829 à Bonnefoy : photo 2
PROGRAMME 7829
livraison 2T2028
Prêt à Taux 0%
Offre
Remise de 2000€/ pièce + frais de notaire offerts
Appartements neufs T1
à partir de 221 730 €
Appartements neufs T2
à partir de 251 940 €
Appartements neufs T3
à partir de 294 000 €
Appartements neufs T4
à partir de 376 400 €
Conseils

Accueil > Appartement neuf à Toulouse Bonnefoy > 111 appartements neufs à Bonnefoy

111 appartements neufs à Bonnefoy

Programme neuf n° 7829

Localisation de la résidence

Au seuil de la nouvelle avenue de Lyon, dans le quartier animé de Bonnefoy, ce programme profite d’une adresse prisée, à deux pas de la future porte d’entrée de la gare Matabiau et du centre-ville toulousain. Bonnefoy conjugue une atmosphère de village – commerces de proximité, marché, cafés – avec une accessibilité exemplaire : gare, métro, bus et accès rapides aux grands axes. Familial et vivant, le secteur compte écoles, collèges et équipements culturels tout en restant relié en quelques minutes aux principaux pôles d’activité de la métropole.

Description de la résidence

Ce programme neuf à Bonnefoy propose 111 appartements bi-orientés du studio au T4 et se place à l'entrée de la nouvelle avenue de Lyon, aux portes du quartier.

Érigée en trois corps distincts, la résidence revêt le célèbre parement de brique rose, signature architecturale de la Ville Rose, et s’inscrit ainsi avec naturel dans son décor toulousain. Les appartements haut de gamme y profitent de tout le confort du neuf : balcons, loggias ou terrasses — certaines atteignant 45 m² — qui prolongent généreusement les pièces principales, tandis que plusieurs cuisines sont livrées entièrement équipées.

Chaque logement bénéficie en outre d’un thermostat individuel, de volets roulants motorisés, de placards intégrés dotés de penderies et de WC suspendus. Un parquet raffiné recouvre aussi bien les séjours que les chambres, et les portes palières se voient protégées par des serrures de sûreté à trois points. Labellisée RE 2020, la résidence garantit une performance thermique élevée été comme hiver, avec une empreinte carbone maîtrisée. L’accès est sécurisé par interphone Vigik® et digicode.

Un parking en sous-sol, complété d’un local à vélos facilitent le stationnement.

Environnement

  • À 8 minutes à pied de la Gare SNCF Toulouse Matabiau
  • À 9 minutes à pied d'un supermarché
  • À 12 minutes à pied de la station de métro Jeanne d'Arc
  • À 5 minutes à pied d'une école élémentaire
  • À 4 minutes à pied d'une salle de sport
  • À 12 minutes en vélo de l'Université Toulouse Capitole
Appartement neuf
1 pièce 2T2028
dès 221 730 €
Plan pour un Appartement neuf de  32.7m² à
					Bonnefoy
Appartement neuf de 32.7m² à Bonnefoy
voir le plan
Appartement neuf
2 pièces 2T2028
dès 251 940 €
Plan pour un Appartement neuf de  40.6m² à
					Bonnefoy
Appartement neuf de 40.6m² à Bonnefoy
voir le plan
Appartement neuf
3 pièces 2T2028
dès 294 000 €
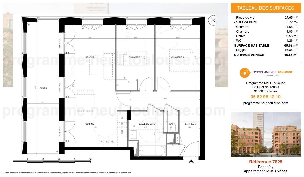
Plan pour un Appartement neuf de  65.81m² à
					Bonnefoy
Appartement neuf de 65.81m² à Bonnefoy
voir le plan
Appartement neuf
4 pièces 2T2028
dès 376 400 €
Plan pour un Appartement neuf de  79.09m² à
					Bonnefoy
Appartement neuf de 79.09m² à Bonnefoy
voir le plan

Les plus du programme

Prestations : Stationnement Stationnement

  • Parking en sous-sol
  • Local à vélos
  • Portail télécommandé

Prestations : Logement Logement

  • Cuisine équipée
  • Placard pré-équipés et penderies
  • WC suspendu

Prestations : Salle de bain Salle de bain

  • Mitigeurs
  • Meubles de salles de bain
  • Miroir sur vasque
  • Sèche-serviettes
  • Paroi de douche

Prestations : Sols et murs Sols et murs

  • Peinture lisse
  • Parquet dans les chambres
  • Faïence toute hauteur pièces d'eau
  • Carrelage 60 par 60
  • Parquet pièces de vie

Prestations : Résidence Résidence

  • Ascenseur
  • Label RE2020

Prestations : Extérieurs Extérieurs

  • Terrasse
  • Balcon
  • Loggia
  • Espaces verts paysagers
  • Point d'eau extérieur
  • Prise électrique extérieur

Prestations : Energie & confort Energie & confort

  • Chauffage collectif
  • Volets roulants électriques
  • Thermostat d'ambiance

Prestations : Sécurité Sécurité

  • Digicode
  • Serrures 3 points
  • Interphone Vigik

PRÉSENTATION du quartier

Le quartier Bonnefoy se trouve à quelques pas de la gare Matabiau et a conservé son esprit de faubourg. Quartier résidentiel et familial, il concentre majoritairement des maisons ainsi que quelques résidences. Inscrit dans le projet Grand Matabiau Quai d'Oc, le quartier se destine à profonde transformation : nouveaux commerces, nouveaux logements et locaux d'activité sont prévus dans le quartier. De belles opportunités sont à saisir !
loupe
Interlocuteur unique
un interlocuteur unique,
du lundi au vendredi
Expertise locale
une expertise locale
CONTACTEZ NOS CONSEILLERS
Obtenez plus d'informations sur ce programme en contactant un expert local