à partir de 259 000 €
à partir de 310 000 €

Accueil > castelginest > 48 appartements neufs à Castelginest
48 appartements neufs à Castelginest
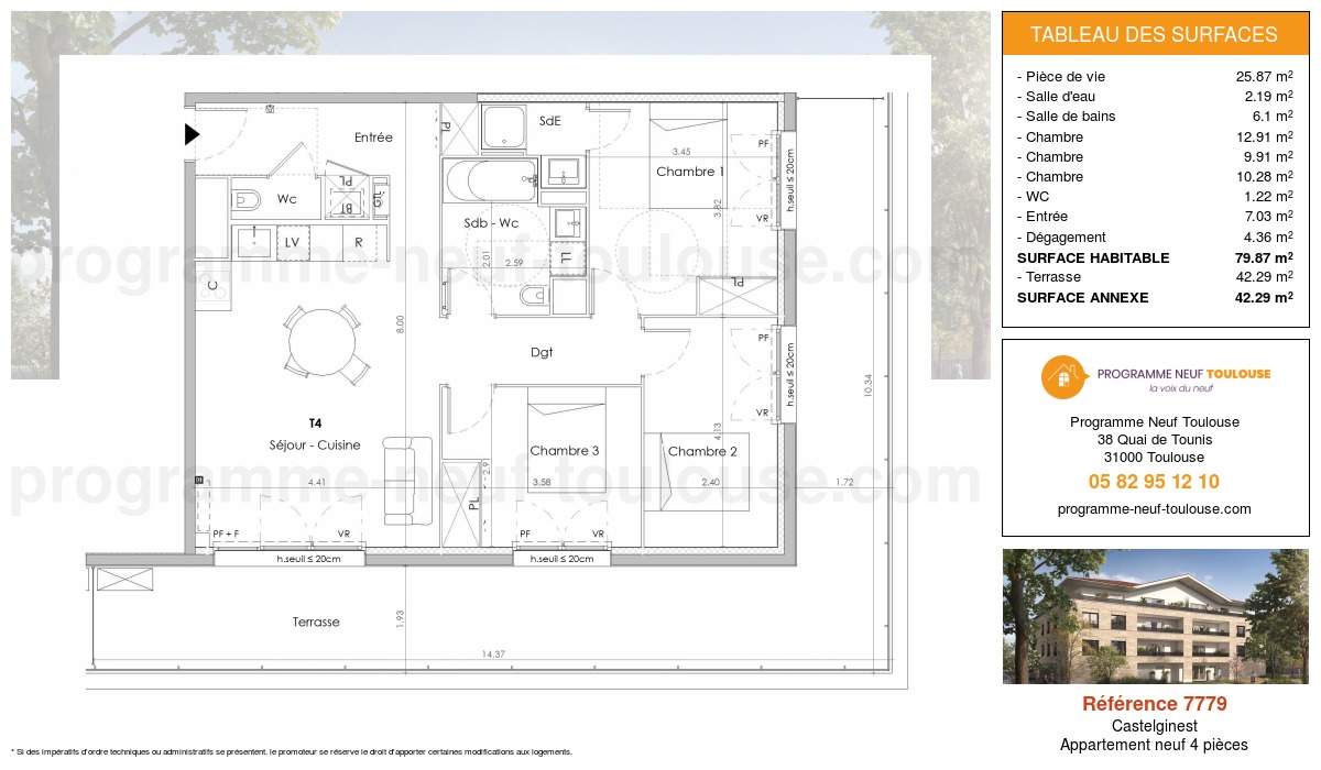
Programme neuf n° 7779
Située au nord de Toulouse, la commune de Castelginest séduit par son ambiance conviviale et son dynamisme. Ce secteur résidentiel offre un équilibre parfait entre vie citadine et tranquillité, avec de nombreux espaces verts et toutes les commodités à portée de main. Castelginest bénéficie également d’une excellente connexion avec la métropole toulousaine, permettant de rejoindre rapidement le centre-ville de Toulouse pour le travail ou les loisirs.
Localisation de la résidence
La résidence se trouve à quelques minutes à pied de plusieurs écoles, telles que l’école maternelle Jules Verne (14 minutes) et l’école primaire Léonard de Vinci (10 minutes), facilitant ainsi la vie des familles. Les commerces de proximité, comme le supermarché U Express à 17 minutes de marche, ainsi que la boulangerie Marie Blachère à 15 minutes, sont facilement accessibles.
Pour vos loisirs, le cinéma Le Castelia et le parc Mauvezin se situent à seulement 10 minutes à pied, offrant des moments de détente en famille ou entre amis. Les amateurs de sport apprécieront la proximité du stade de Fonbeauzard et des infrastructures sportives locales. Enfin, la présence de l’arrêt de bus Pont Vieil à 10 minutes à pied permet de rejoindre aisément les communes voisines et le centre de Toulouse.
Description de la résidence
Cette résidence neuve à Castelginest s’illustre par une architecture contemporaine, élégante et parfaitement intégrée à son environnement résidentiel. Les bâtiments, à taille humaine, privilégient les lignes épurées et des matériaux de qualité, offrant ainsi une harmonie visuelle avec le quartier. Les appartements, du T3 au T4, disposent pour la plupart de beaux espaces extérieurs : terrasses, balcons ou loggias, permettant de profiter pleinement de la lumière naturelle et de moments de convivialité en plein air. Certains logements bénéficient même de jardins privatifs, idéals pour les familles ou les amateurs de jardinage.
La résidence propose des prestations de standing : parquet dans les chambres, carrelage grand format dans les pièces de vie, cuisines équipées et salles de bain aménagées. Le confort est renforcé par la présence d’une pompe à chaleur, garantissant une performance énergétique optimale conforme à la norme RE2020. Les espaces verts paysagers et le local à vélos favorisent un mode de vie sain et durable. Le stationnement est assuré par un parking couvert en RDC et la sécurité est renforcée grâce à un portail télécommandé, un visiophone et des accès sécurisés. Ce programme est une opportunité rare pour investir ou habiter dans un cadre moderne, sécurisé et respectueux de l’environnement.
Environnement
- Arrêt de bus Pont Vieil, 10 minutes à pied
- Gare SNCF Lacourtensourt, 10 minutes
- Gare de Fenouillet, 2,4 km
- Aéroport de Toulouse-Blagnac, 8,1 km
- Centre commercial de Fenouillet (110 boutiques), moins de 5 km
- École Léonard de Vinci et Collège Jacques Mauré, 5 minutes à pied
- Parc Mauvezin, 9 minutes à pied
- Complexe sportif des Fontanelles, 16 minutes à pied
- Boulangerie, pharmacie, banque, poste, tennis, terrain de jeux à proximité immédiate


Les plus du programme
Stationnement
- Local à vélos
- Portail télécommandé
- Parking couvert
Logement
- Cuisine équipée
- Placard pré-équipés et penderies
- WC suspendu
Salle de bain
- Mitigeurs
- Meubles de salles de bain
- Miroir sur vasque
- Sèche-serviettes
Sols et murs
- Peinture lisse
- Parquet dans les chambres
- Carrelage pièces de vie
- Carrelage 45 par 45
- Faïence toute hauteur pièces d'eau
Résidence
- Ascenseur
- Label RE2020
Extérieurs
- Terrasse
- Balcon
- Loggia
- Espaces verts paysagers
- Point d'eau extérieur
- Prise électrique extérieur
Energie & confort
- Volets roulants électriques
- Pompe à chaleur
Sécurité
- Visiophone
- Résidence clôturée
- Détecteurs de fumée
- Serrures 3 points
- Interphone Vigik
PRÉSENTATION de la commune
