Contactez-nous par mail
du lundi au vendredi
Contactez-nous par telephone
05 82 95 12 10
Contactez-nous via un formulaire
Contactez-nous
Programme 7923 à Fenouillet : photo 0
Programme 7923 à Fenouillet : photo 1
Programme 7923 à Fenouillet : photo 2
PROGRAMME 7923
livraison 2T2028
Prêt à Taux 0%
Offre
Frais de notaire offerts + Remise 3000/pièce
Appartements neufs T2
à partir de 195 400 €
Appartements neufs T3
à partir de 250 300 €
Appartements neufs T4
à partir de 304 000 €
Conseils

Accueil > fenouillet > 40 logements neufs à Fenouillet

40 logements neufs à Fenouillet

Programme neuf n° 7923

Fenouillet séduit par son cadre de vie paisible à proximité immédiate de l’agglomération toulousaine (15 min), offrant un bon compromis entre nature et services. La commune bénéficie d’un tissu commercial développé, d’équipements scolaires variés et d’espaces verts propices aux promenades. Résolument tournée vers la qualité de vie, elle attire familles et actifs souhaitant garder un accès rapide aux pôles d’emploi et de loisirs de la métropole tout en profitant d’un environnement plus calme et résidentiel.

Localisation de la résidence

Le secteur rassemble de nombreux services de proximité : collèges et écoles comme le Collège François Mitterrand et l’École Primaire Piquepeyre (2 min à pied). Les commerces et services quotidiens sont accessibles rapidement, environ 10 minutes à pied.

Pour les courses et sorties, le centre commercial La Galerie Espaces Fenouillet et Auchan Drive se trouvent à une quinzaine de minutes en voiture, tandis que des cafés et restaurants tels que Factory & Co ou Crep’eat proposent des lieux de restauration à proximité. Enfin, médiathèque, cabinet médical et boutiques complètent l’offre locale pour une vie de quartier pratique et complète.

Description de la résidence

Ce programme neuf à Fenouillet propose une architecture contemporaine aux lignes soignées, façades traitées avec une attention aux matériaux durables et aux proportions harmonieuses. Les logements vont du T2 au T4 et s’ouvrent sur des terrasses en bois, balcons, loggias ou jardins privatifs pour certains, offrant des prolongements agréables vers l’extérieur. Le stationnement est organisé avec un parking couvert en RDC et des emplacements aériens sécurisés, complétés par des places visiteurs et un local à vélos.

Conçu pour le confort et les performances énergétiques, le programme est certifié RE2020 et inclut un système de chauffage par pompe à chaleur (clim réversible pour les T4) ainsi que l'ECS par ballon thermodynamique. Les prestations intérieures allient standing et fonctionnalité : parquet dans les chambres, carrelage dans les pièces de vie, cuisines équipées, faïence toute hauteur dans les salles d’eau et volets roulants électriques.

Environnement

  • Arrêt de bus (Fenouillet Croix / Fenouillet Eglise selon accès) : environ 400 à 800 m (soit 12–13 minutes à pied selon l’arrêt)
  • Collège / École (Collège François Mitterrand, École Primaire Piquepeyre) : 2 minutes à pied
  • Micro-crèche Ô P’tit Môme : ~600 m
  • Place Eglantyne Jebb et esplanade commerciale : à quelques minutes à pied (≈250–350 m)
  • Centre commercial La Galerie Espaces Fenouillet : ~5 minutes en voiture
  • Gare TER (Lacourtensourt) : liaison rapide vers Toulouse-Matabiau (TER ~6 min depuis Lacourtensourt); trajet en voiture jusqu’à Toulouse-Matabiau ≈ 25 min suivant trafic
  • Aéroport Toulouse-Blagnac : environ 14–20 minutes en voiture
  • Lac du Bocage et bords de Garonne : promenades et loisirs à proximité, accessibles à vélo
Appartement neuf
2 pièces 2T2028
dès 195 400 €
Plan pour un Appartement neuf de  42.15m² à
					Fenouillet
Appartement neuf de 42.15m² à Fenouillet
voir le plan
Appartement neuf
3 pièces 2T2028
dès 250 300 €
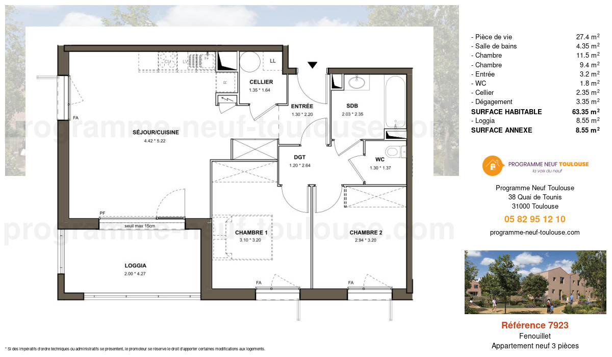
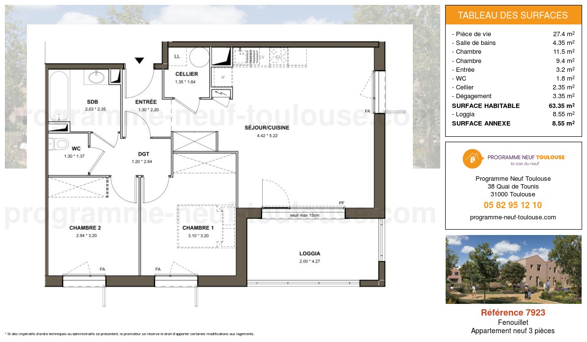
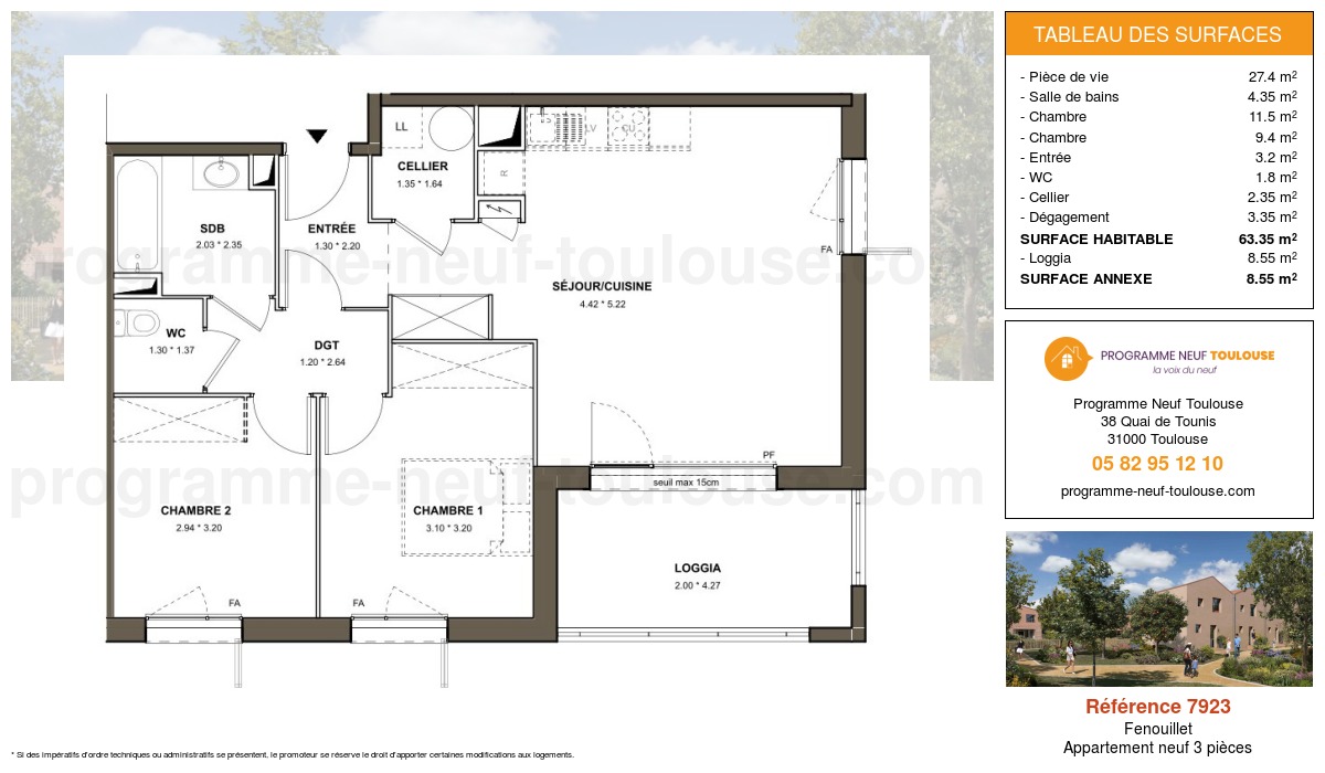
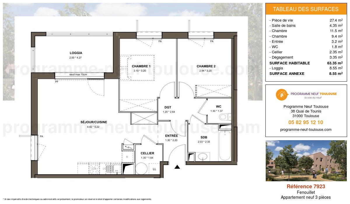
Plan pour un Appartement neuf de  63.35m² à
					Fenouillet
Appartement neuf de 63.35m² à Fenouillet
voir le plan
Appartement neuf
4 pièces 2T2028
dès 304 000 €
Plan pour un Appartement neuf de  79.45m² à
					Fenouillet
Appartement neuf de 79.45m² à Fenouillet
voir le plan

Les plus du programme

Prestations : Stationnement Stationnement

  • Parking visiteurs
  • Parking couvert
  • Parking aérien
  • Local à vélos
  • Portail télécommandé

Prestations : Logement Logement

  • WC suspendu
  • Cuisine équipée
  • Placard pré-équipés et penderies

Prestations : Salle de bain Salle de bain

  • Mitigeurs
  • Meubles de salles de bain
  • Miroir sur vasque
  • Sèche-serviettes

Prestations : Sols et murs Sols et murs

  • Faïence toute hauteur pièces d'eau
  • Parquet dans les chambres
  • Carrelage pièces de vie

Prestations : Résidence Résidence

  • Label RE2020
  • Ascenseur

Prestations : Extérieurs Extérieurs

  • Point d'eau extérieur
  • Prise électrique extérieur
  • Terrasse en bois
  • Balcon
  • Loggia
  • Espaces verts paysagers
  • Jardins privatifs

Prestations : Energie & confort Energie & confort

  • Pompe à chaleur
  • Thermostat d'ambiance
  • Volets roulants électriques
  • Climatisation réversible
  • ECS par ballon thermodynamique

Prestations : Sécurité Sécurité

  • Visiophone
  • Digicode
  • Serrures 3 points
  • Résidence clôturée

PRÉSENTATION de la commune

Programme labellisé RE2020 avec pompe à chaleur, terrasses en bois et jardins privatifs, idéalement situé à moins de 10 minutes des écoles et commodités locales.
loupe
Interlocuteur unique
un interlocuteur unique,
du lundi au vendredi
Expertise locale
une expertise locale
CONTACTEZ NOS CONSEILLERS
Obtenez plus d'informations sur ce programme en contactant un expert local