Contactez-nous par mail
du lundi au vendredi
Contactez-nous par telephone
05 82 95 12 10
Contactez-nous via un formulaire
Contactez-nous
Programme 7941 à Muret : photo 0
Programme 7941 à Muret : photo 1
Programme 7941 à Muret : photo 2
PROGRAMME 7941
livraison 4T2026
Prêt à Taux 0%
Maisons neuves T4
à partir de 220 000 €
Conseils

Accueil > muret > 14 maisons neuves à Muret

14 maisons neuves à Muret

Programme neuf n° 7941

Description de la résidence

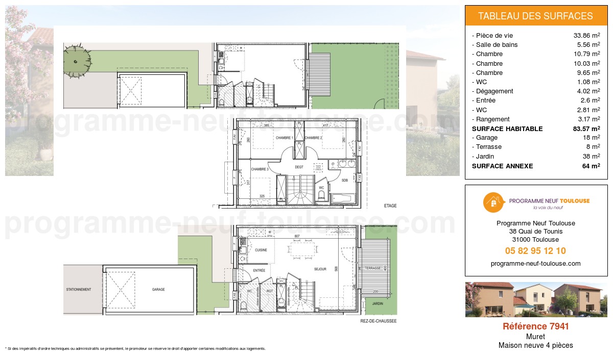
Ce programme propose une seule construction soignée regroupant 14 logements de type maison T4, d'environ 83,45 à 83,97 m², proposés à la vente entre 220 000 € et 246 000 €. Chaque logement a été conçu pour offrir des espaces de vie optimisés et lumineux, avec des finitions de qualité adaptées au quotidien des familles.

Les lots bénéficient de jardins privatifs et de terrasses en bois, ainsi que de stationnements pratiques : garage individuel et parkings aérien. Les intérieurs sont équipés de parquets dans les pièces de vie et les chambres, de placards pré-équipés et de sanitaires complets (faïence toute hauteur, meubles et miroirs), pour un confort immédiat.

Sur le plan énergétique et technique, la résidence répond au label RE2020 et intègre une production d'eau chaude par ballon thermodynamique ainsi qu’une pompe à chaleur, garantissant une meilleure performance et des charges maîtrisées. Les prestations de sécurité et de confort incluent volets roulants électriques, serrure 3 points, détecteurs de fumée et portail télécommandé. Espaces verts paysagers et clôture complètent l’ensemble pour une atmosphère résidentielle apaisée.

Localisation de la résidence

Ce programme neuf à Muret se situe à proximité d’écoles comme l’école élémentaire publique Le Barry (12 minutes à pied) et du lycée polyvalent Pierre d'Aragon (18 minutes à pied), facilitant les trajets des familles. Les commerces de proximité et services de santé sont accessibles en moins de 20 minutes à pied : cabinets médicaux et dentaires, pharmacies et optique.

Pour les courses, un supermarché ALDI se trouve à environ 11 minutes en transport en commun, tandis que boulangeries et fleuristes sont à une vingtaine de minutes de marche. Les équipements de loisirs ne sont pas en reste avec le parc "Le coin des L" à 16 minutes à pied et le stade Colette Besson à 17 minutes à pied, offrant des espaces verts et de sport pour tous les âges.

Accessibilité facilitée

  • Arrêt de bus (Drouet), 5 minutes à pied
  • Arrêt de bus (Vernole), 6 minutes à pied
  • Gare (Gare de Muret), environ 10 minutes en voiture
Maison neuve
4 pièces 4T2026
dès 220 000 €
Plan pour un Maison neuve de  83.57m² à
					Muret
Maison neuve de 83.57m² à Muret
voir le plan

Les plus du programme

Prestations : Stationnement Stationnement

  • Parking aérien
  • Garage
  • Portail télécommandé

Prestations : Logement Logement

  • Placard pré-équipés et penderies

Prestations : Salle de bain Salle de bain

  • Mitigeurs
  • Meubles de salles de bain
  • Miroir sur vasque
  • Sèche-serviettes

Prestations : Sols et murs Sols et murs

  • Peinture lisse
  • Parquet dans les chambres
  • Faïence toute hauteur pièces d'eau
  • Parquet pièces de vie

Prestations : Résidence Résidence

  • Label RE2020

Prestations : Extérieurs Extérieurs

  • Terrasse en bois
  • Jardins privatifs
  • Espaces verts paysagers
  • Prise électrique extérieur

Prestations : Energie & confort Energie & confort

  • Volets roulants électriques
  • Thermostat d'ambiance
  • Pompe à chaleur
  • ECS par ballon thermodynamique

Prestations : Sécurité Sécurité

  • Résidence clôturée
  • Détecteurs de fumée
  • Serrures 3 points

PRÉSENTATION de la commune

Maisons neuves T4 avec jardins privatifs, prestations soignées et label RE2020, livrables au 4ème trimestre 2026, idéal pour des familles en quête de confort moderne.
loupe
Interlocuteur unique
un interlocuteur unique,
du lundi au vendredi
Expertise locale
une expertise locale
CONTACTEZ NOS CONSEILLERS
Obtenez plus d'informations sur ce programme en contactant un expert local