Contactez-nous par mail
du lundi au vendredi
Contactez-nous par telephone
05 82 95 12 10
Contactez-nous via un formulaire
Contactez-nous
Programme 8024 à Saint-Martin-du-Touch : photo 0
Programme 8024 à Saint-Martin-du-Touch : photo 1
Programme 8024 à Saint-Martin-du-Touch : photo 2
PROGRAMME 8024
livraison 1T2027
Prêt à Taux 0%
Offre
Jusqu'à 4 000 € de remise + Frais de notaire OFFERTS
Appartements neufs T2
à partir de 195 000 €
Appartements neufs T3
à partir de 265 000 €
Appartements neufs T4
à partir de 319 000 €
Conseils

Accueil > saint-martin-du-touch > 14 appartements neufs à Saint-martin-du-Touch

14 appartements neufs à Saint-martin-du-Touch

Programme neuf n° 8024

Description de la résidence

Ce programme neuf à Saint-Martin-du-Touch se compose d'un seul bâtiment abritant 14 logements neufs, déclinés du T2 au T4, offrant des surfaces pensées pour optimiser confort et luminosité (T2 : ~45 m², T3 : 65‑71 m², T4 : 81‑100 m²).

Chaque logement bénéficie d'extérieur privatif selon les typologies : balcons, terrasses ou jardins privatifs pour certains niveaux. Le stationnement est prévu en partie en sous-sol avec parkings sécurisés et locaux à vélos, complétés par des places visiteurs.

Conçu selon le label RE2020 et équipé d'une pompe à chaleur collective, le programme privilégie la performance énergétique. Les prestations intérieures incluent parquet dans les pièces de vie et chambres, faïence toute hauteur dans les pièces d’eau, meubles de salle de bains et sèche-serviettes. Sécurité et confort sont assurés par volets roulants électriques, serrures 3 points, interphone Vigik et résidence clôturée.

Localisation de la résidence

La vie de quartier est agréable et bien pourvue : écoles et collège sont à seulement 5–7 minutes à pied, facilitant les trajets scolaires. Le parc Saint Martin du Touch se situe à environ 6 minutes à pied, idéal pour les promenades et les activités en plein air.

Commerces de proximité, supérette et boulangerie se trouvent entre 7 et 21 minutes à pied, ainsi que des services de santé et des clubs de sport accessibles en moins de 20 minutes. Des établissements de restauration et quelques salons de beauté complètent l’offre locale pour un quotidien pratique et serein.

Environnement

  • Gare (Saint‑Martin du Touch), 9 minutes à pied
  • Arrêt de bus (Saint Granier), 14 minutes à pied
  • Parc et promenades (Parc Saint Martin du Touch), 6 minutes à pied
  • Écoles (École & Collège La Boétie / École Élémentaire Fleurance), 5 à 7 minutes à pied
Appartement neuf
2 pièces 1T2027
dès 195 000 €
Plan pour un Appartement neuf de  44.77m² à
					Saint-Martin-du-Touch
Appartement neuf de 44.77m² à Saint-Martin-du-Touch
voir le plan
Appartement neuf
3 pièces 1T2027
dès 265 000 €
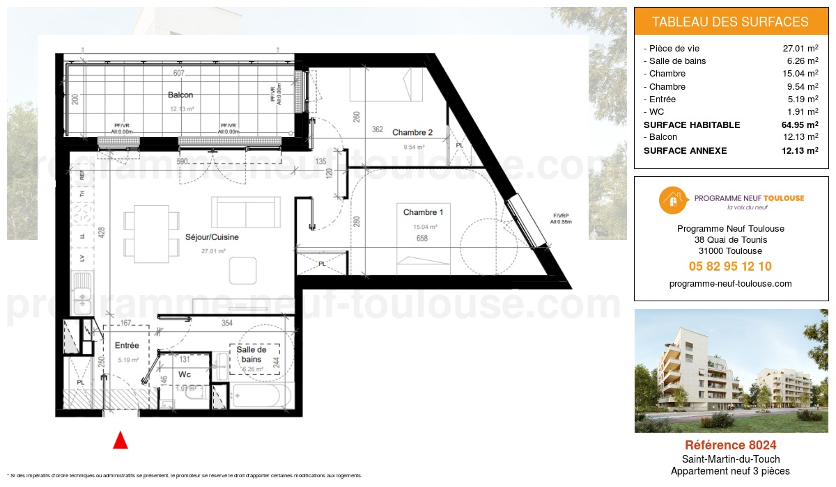
Plan pour un Appartement neuf de  64.95m² à
					Saint-Martin-du-Touch
Appartement neuf de 64.95m² à Saint-Martin-du-Touch
voir le plan
Appartement neuf
4 pièces 1T2027
dès 319 000 €
Plan pour un Appartement neuf de  81.42m² à
					Saint-Martin-du-Touch
Appartement neuf de 81.42m² à Saint-Martin-du-Touch
voir le plan

Les plus du programme

Prestations : Stationnement Stationnement

  • Parking visiteurs
  • Local à vélos
  • Portail télécommandé

Prestations : Logement Logement

  • Placard pré-équipés et penderies

Prestations : Salle de bain Salle de bain

  • Paroi de douche
  • Mitigeurs
  • Meubles de salles de bain
  • Miroir sur vasque
  • Sèche-serviettes

Prestations : Sols et murs Sols et murs

  • Faïence toute hauteur pièces d'eau
  • Parquet pièces de vie
  • Peinture lisse
  • Parquet dans les chambres

Prestations : Résidence Résidence

  • Label RE2020
  • Ascenseur

Prestations : Extérieurs Extérieurs

  • Point d'eau extérieur
  • Prise électrique extérieur
  • Terrasse
  • Balcon
  • Espaces verts paysagers
  • Jardins privatifs

Prestations : Energie & confort Energie & confort

  • Pompe à chaleur
  • Thermostat d'ambiance
  • Volets roulants électriques
  • Chauffage collectif

Prestations : Sécurité Sécurité

  • Détecteurs de fumée
  • Serrures 3 points
  • Résidence clôturée
  • Interphone Vigik

PRÉSENTATION du quartier

Résidence contemporaine, économe et sécurisée, proposant des appartements lumineux avec terrasses ou jardins privatifs, parkings et prestations soignées, livraison prévue 1er trimestre 2027.
loupe
Interlocuteur unique
un interlocuteur unique,
du lundi au vendredi
Expertise locale
une expertise locale
CONTACTEZ NOS CONSEILLERS
Obtenez plus d'informations sur ce programme en contactant un expert local