Contactez-nous par mail
du lundi au vendredi
Contactez-nous par telephone
05 82 95 12 10
Contactez-nous via un formulaire
Contactez-nous
Programme 7925 à Saint-Michel : photo 0
Programme 7925 à Saint-Michel : photo 1
Programme 7925 à Saint-Michel : photo 2
PROGRAMME 7925
livraison 4T2027
Prêt à Taux 0%
Appartements neufs T2
à partir de 184 900 €
Appartements neufs T3
à partir de 254 900 €
Appartements neufs T5
à partir de 276 900 €
Conseils

Accueil > saint-michel > 120 logements neufs à Saint-Michel

120 logements neufs à Saint-Michel

Programme neuf n° 7925

Description de la résidence

Implanté sur un ensemble de trois bâtiments, ce programme neuf à Saint-Michel propose 120 logements répartis du T2 au T5, conçus pour favoriser lumière naturelle et confort des espaces de vie. Les finitions intérieures associent carrelage grand format 45x45 ou parquet en pièces de vie et peintures lisses pour une ambiance soignée.

Chaque logement bénéficie d'un extérieur privatif selon les typologies : balcon, loggia, terrasse ou jardin pour certains lots. Le stationnement se fait en sous-sol avec accès sécurisé, complété par un local à vélos et un portail télécommandé pour faciliter les arrivées.

Le programme intègre des prestations modernes et responsables : label RE2020 seuil 2025, isolation thermique renforcée, raccordement au chauffage urbain... Côté sécurité, la résidence est équipée de vidéosurveillance dans les parties coimmunes et le parking, d'un accès par badge Vigik et Intratone, et de serrures 3 points sur les portes palières

Les espaces verts paysagers, un potager commun et un solarium en toit-terrasse viennent enrichir le cadre de vie, tandis que des équipements pratiques (cuisine équipée, faïence toute hauteur, sèche-serviettes, volets roulants électriques) apportent un confort quotidien.

Localisation de la résidence

Situé au sud de Toulouse à deux pas de l'île du Ramier, le projet profite d'une proximité immédiate avec la station de métro Empalot (4 minutes à pied) et la médiathèque Empalot (4 minutes), idéals pour les familles et les étudiants. Plusieurs établissements scolaires sont accessibles en moins de 10 minutes à pied, dont une école maternelle et une école élémentaire, ainsi que l'Alliance Française.

Les commerces de proximité comme Lidl et des supérettes se trouvent à proximité (environ 8 à 17 minutes selon l'adresse), tandis que des restaurants et cafés animent le quartier en quelques minutes à pied. Les jardins et espaces verts voisins offrent des promenades faciles pour les loisirs et la détente.

Autour du projet

  • Station de métro Empalot (ligne B) : 3–4 minutes à pied
  • Arrêt de bus Empalot (lignes 44, 54, 152, L5, Linéo L4) : 1–4 minutes à pied selon la ligne
  • Gare Saint-Agne / Station Saint-Agne : environ 14–16 minutes à pied
  • Médiathèque Empalot : 1–4 minutes à pied
  • Supermarchés (Lidl, Carrefour City) : 1–5 minutes à pied/vélo
  • Île du Ramier / futur Parc Garonne : 10–15 minutes à pied
  • Stadium / équipements sportifs : 4–15 minutes à vélo/voiture
  • Université Paul Sabatier et pôles universitaires : 7–9 minutes en métro / 7–10 minutes à vélo
Appartement neuf
2 pièces 4T2027
dès 184 900 €
Plan pour un Appartement neuf de  34.5m² à
					Saint-Michel
Appartement neuf de 34.5m² à Saint-Michel
voir le plan
Appartement neuf
3 pièces 4T2027
dès 254 900 €
Plan pour un Appartement neuf de  60.45m² à
					Saint-Michel
Appartement neuf de 60.45m² à Saint-Michel
voir le plan
Appartement neuf
5 pièces 4T2027
dès 276 900 €
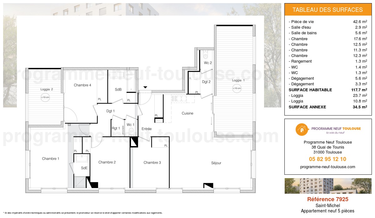
Plan pour un Appartement neuf de  117.7m² à
					Saint-Michel
Appartement neuf de 117.7m² à Saint-Michel
voir le plan

Les plus du programme

Prestations : Stationnement Stationnement

  • Parking en sous-sol
  • Local à vélos
  • Portail télécommandé

Prestations : Logement Logement

  • Cuisine équipée
  • Placard pré-équipés et penderies

Prestations : Salle de bain Salle de bain

  • Mitigeurs
  • Meubles de salles de bain
  • Miroir sur vasque
  • Sèche-serviettes

Prestations : Sols et murs Sols et murs

  • Peinture lisse
  • Parquet dans les chambres
  • Carrelage 45 par 45
  • Grès émaillé
  • Faïence toute hauteur pièces d'eau
  • Parquet pièces de vie

Prestations : Résidence Résidence

  • Ascenseur
  • Label RE2020

Prestations : Extérieurs Extérieurs

  • Terrasse
  • Jardin commun paysager
  • Balcon
  • Loggia
  • Espaces verts paysagers
  • Prise électrique extérieur

Prestations : Energie & confort Energie & confort

  • Chauffage collectif
  • Isolation thermique renforcée
  • Volets roulants électriques

Prestations : Sécurité Sécurité

  • Vidéosurveillance
  • Résidence clôturée
  • Détecteurs de fumée
  • Serrures 3 points
  • Interphone Vigik

PRÉSENTATION du quartier

Des appartements neufs labellisés RE2020 avec extérieurs privatifs, parkings en sous-sol et espaces verts paysagers, à deux pas du métro pour un quotidien pratique.
loupe
Interlocuteur unique
un interlocuteur unique,
du lundi au vendredi
Expertise locale
une expertise locale
CONTACTEZ NOS CONSEILLERS
Obtenez plus d'informations sur ce programme en contactant un expert local